Exklusive Komfortwohnungen provisionsfrei zu vermieten
Bergneustadt, Schöne Aussicht 38

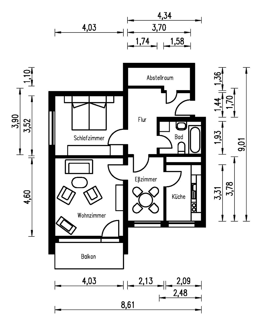
Grundriss 65 m²

Wohnungsgröße: 65 m²

2 Zimmer, Küche, Diele, Bad, Esszimmer, Abstellraum und Balkon.

Ein zusätzlicher Keller befindet sich im Untergeschoss.